The Rivus Elie Saab Thủ Đức
Dự án The Rivus Elie Saab Thủ Đức được quy hoạch trên tổng diện tích 117ha. Dự án nhà phố The Rivus Elie Saab Thủ Đức với định hướng phát triển trở thành khu phước hợp nhà phố cao cấp, Thương Mại & Dịch Vụ, Văn Phòng & Khu Shophouse, Biệt Thự,.. hứa hẹn asẽ là một trong những dự án hot nhất thị trường Đất Nền.
The Rivus Elie Saab Thủ Đức tọa lạc Đường Đỗ Xuân Hợp, Phường An Phú, TP. Thủ Đức, TP.HCM.. Được phát triển bởi Tập đoàn Masterise Homes. Pháp lý dự án như thế nào ? Hiện giá bán The Rivus Elie Saab Thủ Đức trung bình từ tỷ/căn. The Rivus Elie Saab Thủ Đức hiện tại nahư thế nào? Chủ đầu tư dự án The Rivus Elie Saab Thủ Đức có uy tín hay không? Phương thức thanh toán và ưu đãi nhà phố The Rivus Elie Saab Thủ Đức như thế nào?,… Tất cả được đội ngũ nghiên cứu thị trường của Vincom-Shophouse tổng hợp và cập nhật liên tục qua bài viết dưới đây.
| THÔNG TIN CƠ BẢN CỦA DỰ ÁN THE RIVUS ELIE SAAB THỦ ĐỨC |
CHÍNH THỨC NHẬN BOOKING MỞ BÁN NHÀ PHỐ + BIỆT THỰ + HỖ TRỢ XEM THỰC TẾ DỰ ÁN ☎ Hotline 24/7 : 0944 505 454 |
Bảng Giá bán KDC The Rivus Elie Saab Thủ Đức mới nhất được cập nhật giá cụ thể như sau: Giá bán đất nền KDC The Rivus Elie Saab Thủ Đức: đang cập nhật
Liên hệ ngay 0944.505.454 để nhận được BẢNG GIÁ, CHÍNH SÁCH ƯU ĐÃI và GIỎ HÀNG mới nhất của dự án.
☎️ Hotline hỗ trợ dự án 24/7 : 0944.505.454
Giỏ hàng, bảng giá và chính sách bán hàng sẽ THAY ĐỔI THEO THÁNG nên để hỗ trợ được thông tin nhanh chóng và kịp thời. Quý khách hàng nên liên hệ hotline 0944.505.454 để có được thông tin chính xác và mới nhất thông qua đội ngũ nhân viên tư vấn chuyên nghiệp của dự án.
NHIỆT TÌNH – CHÍNH XÁC – CHUYÊN NGHIỆP
- Gọi ngay: 0944.505.454
- Inbox Zalo: https://zalo.me/09444505454
- Inbox Viber: viber://chat?number=+84944505454
☎️ Hotline hỗ trợ dự án 24/7 : 0944.505.454
GIỚI THIỆU
Giới thiệu sơ lượt về The Rivus Elie Saab Thủ Đức
Dự án The Rivus Elie Saab Thủ Đức là Dự án Căn hộ cao cấp tại Đường Đỗ Xuân Hợp, phường An Phú, thành phố Thủ Đức, thành phố Hồ Chí Minh. Căn hộ The Rivus Elie Saab do Masterise Group làm chủ đầu tư với quy mô 117,4 ha được chúng tôi chia làm 2 Phân khu: Khu nhà ở có quy mô 22 ha bao gồm 193 nền biệt thự, nhà liên kế sân vườn và khu căn hộ hạng sang
& Khu liên hợp sân Golf rộng 92 ha gồm Sân Golf 18 lỗ, khu khách sạn 400 phòng và khu nghỉ dưỡng spa cao cấp.
The Rivus là đại dự án tổ hợp khu đô thị và khu phức hợp tiện ích chuẩn quốc tế của chủ đầu tư Masterise Homes tại trung tâm thành phố mới Thủ Đức. Với quy mô khủng lên đến hơn 10.000 căn hộ, hàng trăm nhà phố, biệt thự, The Rivus Elie Saab Thủ Đức dự kiến sẽ là “cú hích” hâm nóng thị trường bất động sản khu Đông Sài Gòn vốn đã nhộn nhịp những năm gần đây.
Là dự án căn hộ cao cấp được đầu tư bởi nhà phát triển bất động sản hàng đầu Việt Nam – Masterise Homes. The Rivus Elie Saab được tọa lạc ngay tại trái tim của đại đô thị thông minh The Rivus Saigon. Với việc sở hữu được vị trí vô cùng đắc địa ngay trục đường xuyên tâm cùng với đó là tầm view tuyệt đẹp ra công viên và hồ trung tâm 10,2ha. Khu căn hộ cao cấp The Rivus Elie Saab hiện đang được đánh giá là dự án bất động nổi bật tại khu vực thành phố Hồ Chí Minh.Tại The Rivus Elie Saab đã được áp dụng các tiêu chí và tiêu chuẩn bàn giao cao cấp nội thất liền tường, cùng với đó hệ kính hộp Triple Low-E được ốp từ sàn đến trần, hệ thống thiết bị nội thất được nhập khẩu từ những nhãn hiệu nổi tiếng như: Herfly, Duravit, Boss, Daikin.

Các dự án đã, đang triển khai, đến nay hoàn thiện nhiều hạng mục hạ tầng giao thông, điện, nước, điện chiếu sáng và các dãy nhà phố, khu biệt thự. Cùng với định hướng quy hoạch của The Rivus Elie Saab Thủ Đức, dự án Khu đô thị The Rivus Elie Saab Thủ Đức hoàn thành trong nay mai sẽ góp phần tạo nên bộ mặt đô thị mới hiện đại bậc nhất của thị trường BĐS.
Xin đại diện chủ đầu tư giới thiệu đến Quý khách hàng sản phẩm đất nền nhà phố thương mại: Khu dân cư The Rivus Elie Saab Thủ Đức qua những thông tin sau.
QUY MÔ
Thông tin chi tiết về Dự án The Rivus Elie Saab Thủ Đức
Quy mô The Rivus Elie Saab Thủ Đức Theo các chuyên gia, thị trường bất động sản đang có những chuyển biến tích cực cả về giá bán lẫn lượng giao dịch, đặc biệt là ở phân khúc đất nền. Dự báo trong thời gian tới, thị trường nhất là ở phân khúc nhà ở riêng lẻ và đất nền .
Lý giải nguyên nhân này, các chuyên gia đã chỉ ra với bối cảnh quỹ đất cạn kiệt và mức giá leo thang ở các thành phố lớn như TP HCM thì xu hướng dịch chuyển dòng vốn về các tỉnh có tiềm năng phát triển tốt như Bình Thuận, hơn nữa khoảng cách giữa TP HCM và Bình Thuận không quá xa, giao thông lại di chuyển dễ dàng. Tiếp theo, quỹ đất ở Bình Thuận còn rộng mở, đầu tư bất động sản tại đây sẽ đem lại khả năng sinh lợi sẽ cao do mức độ tăng giá đất ở đây vượt hơn so với việc tăng giá đất theo quy luật thông thường.
| Tên dự án: | THE RIVUS ELIE SAAB THỦ ĐỨC |
| Địa chỉ: | Đường Đỗ Xuân Hợp, Phường An Phú, TP. Thủ Đức, TP.HCM. |
| Chủ đầu tư: | Tập đoàn Masterise Homes |
| Ngày khỏi công dự án: | Quí I /2021 ( Dự kiến) |
| Thời gian công trình hoàn thành: | đang cập nhật |
| Hiện trạng xây dựng: | Đang hoàn thành cơ sở hạ tầng |
| Quy mô dự án: | 117ha |
| Mật độ xây dựng: | 26% |
| Pháp lý dự án: | Phê duyệt quyết định 1/500 ( Đã có sổ từng nền) Sổ hồng – Sở hữu lâu dài và 50 năm đối với người nước ngoài |
| Tổng số nền đất: | Hơn 20 tòa tháp căn hộ cao tầng tầng kết hợp khu biệt thự thấp tầng và nhà phố thương mại |
| Loại hình sản phẩm | căn hộ, nhà phố |
| Diện tích đất đa dạng | : 75m2 – 105m2 (2 – 3 phòng ngủ); 132m2 – 160m2 (Căn hộ Duplex); 200 – 300m2 (Căn Penthouse); 160m2 – 350m2 (Căn hộ thương mại dịch vụ) |
| Hình thức sở hữu | Lâu dài |
| Mức giá/m2 Trung bình | Từ 100 triệu/m2 |

VỊ TRÍ
Vị trí chiến lược tại dự án The Rivus Elie Saab Thủ Đức
Vị trí The Rivus Elie Saab Thủ Đức nằm ngay đường Đỗ Xuân Hợp, thuộc phường An Phú, TP. Thủ Đức, TP.HCM. Vị trí The Rivus Elie Saab được đánh giá cao bởi hai mặt tiền giáp đường lộ trong đó có Cao tốc TP.HCM – Long Thành – Dầu giây, các mặt còn lại tiếp giáp khu đô thị kiểu mẫu Sai Gon Sport City và sông Rạch Chiếc.
Nhờ địa thế này, Dự án The Rivus Elie Saab hưởng nhiều quyền lợi từ hạ tầng phát triển không ngừng của khu vực trung tâm thành phố mới Thủ Đức, không gian sống xanh, mát mẻ, hiền hòa của sông Rạch Chiếc cùng vô vàn tiện ích từ bình dân đến đẳng cấp tại các khu vực đại đô thị quy mô không kém liền kề.
Bên cạnh đó, vị trí ngay tại The Rivus Elie Saab Quận 2 cũng vô cùng thuận tiện kết nối với khu đô thị tài chính Quốc tế Thủ Thiêm, khu công nghệ cao Quận 9 (cũ), khu Làng Đại học Quốc gia cũng như trung tâm Quận Bình Thạnh, Quận 1, sân bay Tân Sơn Nhất, các tỉnh vệ tinh phía Đông Sài Gòn thông qua hai tuyến đường trục Đỗ Xuân Hợp và Cao tốc TP.HCM – Long Thành – Dầu Giây.
Song song đó, tuyến đường Liên Phường đi xuyên tâm dự án từ nút giao Đỗ Xuân Hợp và đường Mai Chí Thọ cũng đang thành hình và được đánh giá là một trong những tuyến giao thông trọng điểm của vùng.
Theo đó, khi đưa vào khai thác, tuyến đường này sẽ giúp The Rivus Elie Saab Saigon kết nối thần tốc đến trung tâm Quận 1 thông qua Đại lộ Mai Chí Thọ, đồng thời rút ngắn đáng kể thời gian đến khu công nghệ cao qua tuyến Liên Phường – Võ Chí Công.
Có thể nói, vị trí The Rivus Elie Saab Thủ Đức sẽ là tâm điểm giao thoa giữa các khu vực: trung tâm nghiên cứu và ứng dụng khoa học – công nghệ, trung tâm giáo dục – đào tạo nhân lực có trình độ cao, trung tâm sản xuất và kinh doanh hàng hóa, dịch vụ công nghệ cao.
Với nền tảng như vậy, hạ tầng xung quanh Căn hộ The Rivus Elie Saab vốn dĩ đã được quy hoạch bài bản sẽ không ngừng thay da đổi thịt nhanh chóng trong giai đoạn 2021-2025.

TIỆN ÍCH
Tiện ích đẳng cấp của Khu dân cư The Rivus Elie Saab Thủ Đức
TIỆN ÍCH NỘI KHU
Dự án The Rivus Elie Saab Thủ Đức được quy hoạch, xây dựng hệ thống tiện ích sinh hoạt hiện đại, đẳng cấp với tầm nhìn biến nơi đây thành điểm đến của các người dân trong khu vực, là nơi tập trung đông mật độ kinh doanh buôn bán, góp phần phát triển mạnh khu dân cư. Chủ đầu tư với tiêu chí tiện ích và an ninh dành cho dân cư sinh sống tại đây được đặt lên hàng ,các tiện ích dịch vụ lý tưởng đi kèm như:
- Khu hồ cảnh quan
- Trường học các cấp tiêu chuẩn quốc tế
- Khu công viên đi bộ thể dục thể thao
- Nhà trẻ
- Trung tâm mua sắm hiện đại, sầm uất
- Khu vui chơi, giải trí thoải mái
- Chuỗi nhà hàng, quán cafe đa dạng
- Phòng gym, yoga,..

TIỆN NGOẠI NGOẠI KHU
- Di chuyển đến sân bay Tân Sân Nhất: 20 phút
- Di chuyển đến chợ nông sản Thủ Đức: 5 phút
- Di chuyển đến Vincom Thủ Đức: 7 phút
- Di chuyển đến Trung tâm thương mại 7 tầng: 3 phút
- Di chuyển đến bệnh viện Hạnh Phúc: 12 phút
- Di chuyển đến Trung tâm TPHCM: 30 phút
- Trong vòng bán kính từ 3- 6km, từ Dự án The Rivus Elie Saab thuận lợi kết nối đến các tiện ích dân sinh thiết yếu như chợ, siêu thị, bệnh viện, trường học, trung tâm hành chính, phương tiện công cộng nổi bật của vùng.
Cụ thể, từ Khu đô thị The Rivus Elie Saab chỉ mất ít phút để tìm đến chợ Thanh Mỹ Lợi, chợ Cát Lái, chợ Cây Xoài, siêu thị Vinatex, siêu thị Me Bệnh viện Đa khoa Quận 2 (cũ), trường Quốc tế Sài Gòn Star, trường Quốc tế ACG, siêu thị Metro, Big C, TTTM Parkson,…
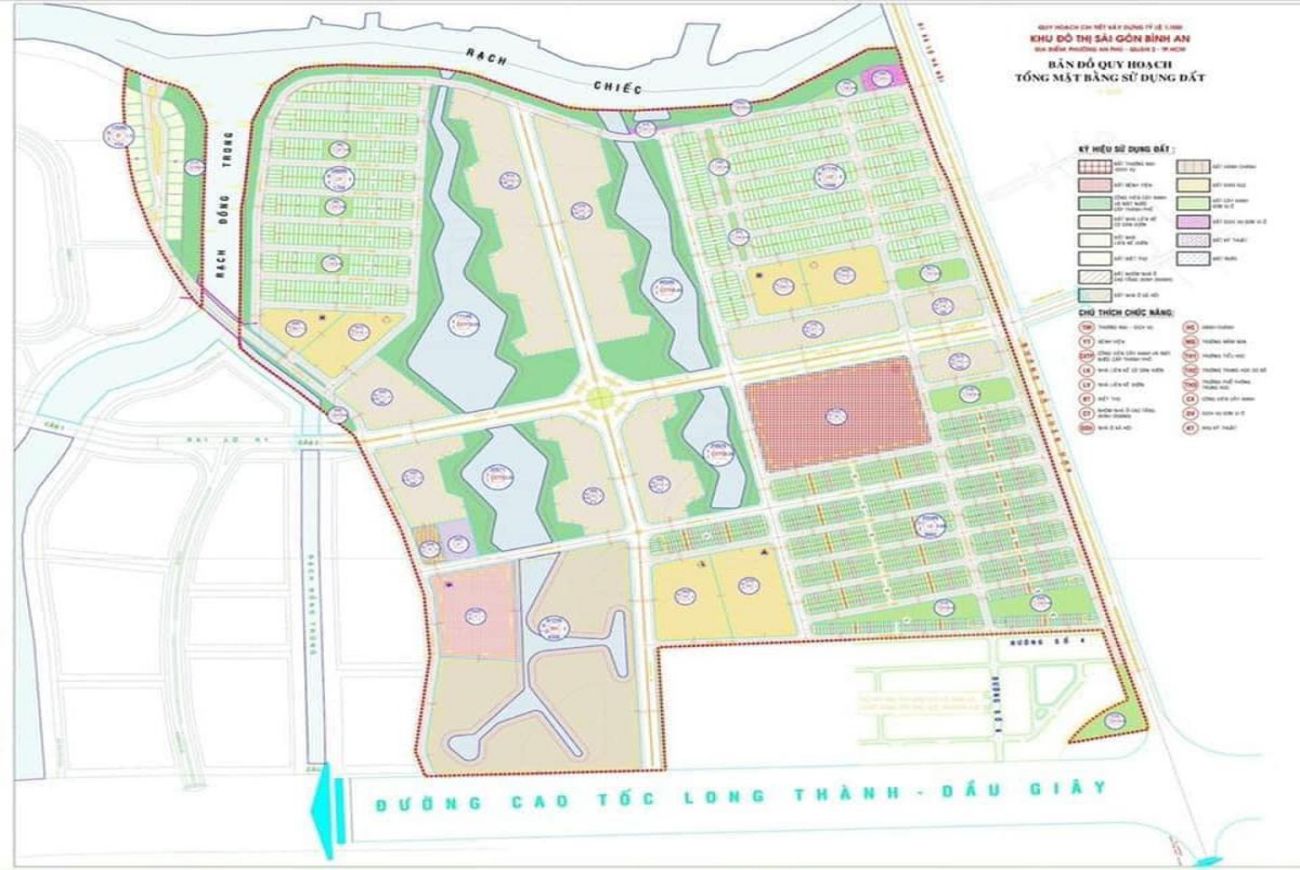
MẶT BẰNG
Mặt bằng phân lô của khu đô thị The Rivus Elie Saab Thủ Đức
Mặt bằng The Rivus Elie Saab Thủ Đức vô cùng thoáng rộng với 117,4 ha đất, trong đó đất dành cho nhà ở dự kiến khoảng 22ha, chia thành hai phân khu là The Rivus Town (căn hộ phức hợp) và The Rivus Plaza (nhà thấp tầng).
Khu căn hộ cao cấp Elie Saab được nằm trải dài theo trục đường xuyên tâm rộng 52m2 của đại đô thị The Rivus. Dự án Elie Saab với tổng quy mô diện tích lớn; tại đây được phát triển nên các tòa căn hộ có 1 tầng hầm và 38 tầng nổi. Tất cả các tòa căn hộ cao cấp đều sở hữu được tầm nhìn trực diện ra công viên và hồ trung tâm rộng 10,2ha. Đây chính là tổ hợp tiện ích lớn nhất toàn đô thị với điểm nhấn là công viên trung tâm rộng 4,8ha, rộng hơn diện tích của cả dự án Elie Saab. Tất cả đã tạo nên một không gian vô cùng lý tưởng tại Elie Saab.Dự án The Rivus Elie Saab dự kiến sẽ cung cấp cho thị trường bất động sản khoảng gần 3.600 căn hộ cao cấp. Đây chính là nguồn cung đáng kể cho thị trường bất động sản trong cuối năm 2021 khi ra mắt.The Rivus Elie Saab đã được lên kế hoạch thiết kế xây dựng với 5 dòng căn hộ chính từ 1 ngủ đến 3 ngủ, có diện tích từ 30m2 – 160m2, đa dạng các loại hình thiết kế, qua đó có thể đáp ưng được tối đa nhu cầu của tất cả quý khách hàng từ nhà đầu tư cho đến khách hàng mua để ở.
- Căn hộ Studio: Diện tích từ 30m2 – 39m2
- Căn hộ 1 phòng ngủ: Diện tích 46m2 – 51m2
- Căn hộ 2 ngủ 1 toilet: Diện tích 60m2 – 68m2
- Căn hộ 2 ngủ 2 toilet: Diện tích 70 – 72m2
- Căn hộ 3 ngủ: Diện tích 82m2 – 90m2
- Căn hộ Duplex: 92m2 – 142m2
Ngoài ra, dự án căn hộ cao cấp The Rivus Elie Saab còn có được thiết kế thêm dòng căn hộ ghép thông có diện tích toàn căn lên tới khoảng 125m2. Đây chính là dòng sản phẩm đặc thù được chủ đầu tư Masterise Homes lên thiết kế riêng cho những khách hàng mong muốn sở hữu những không gian sống rộng lớn hơn so với các căn hộ nguyên bản. Ngoài ra, các loại căn hộ ghép này hầu hết đều là những cặp căn góc cực kỳ thoáng mát.

THIẾT KẾ
Thiết kế nhà phố The Rivus Elie Saab Thủ Đức
Thiết kế The Rivus Elie Saab Thủ Đức Cái Răng thổ cư Full 100%, xây dựng tự do với độ cao tầng từ 1 đến 3 tầng, đường nội bộ rộng 13m2 có vỉa hè. Bên trong khu dân cư có công viên trồng cây xanh là nơi thư giãn tập thể dục và là một phần không thể thiếu của một cộng đồng văn minh.


PHÁP LÝ
Pháp lý đầy đủ của Dự án The Rivus Elie Saab Thủ Đức
Pháp lý The Rivus Elie Saab Thủ Đức đã hoàn thành nộp tiền thuê đất, tiền sử dụng đất, lệ phí trước bạ nhà đất và các nghĩa vụ tài chính khác liên quan… do Cục Thuế tỉnh Bình Thuận xác nhận. Bên cạnh đó, dự án có đầy đủ chủ trương đầu tư, quy hoạch chi tiết tỷ lệ 1/500, giấy phép xây dựng và sử dụng đầu tư trên khu vực đất theo quyết định giao đất của UBND tỉnh Bình Thuận. Phía chủ đầu tư Vi Nam cũng đã tổ chức lễ động thổ thi công xây dựng theo đúng quy định của pháp luật..
THANH TOÁN
Phương thức thanh toán hấp dẫn của The Rivus Elie Saab Thủ Đức
Phương thức thanh The Rivus Elie Saab Thủ Đức
Ngoài ra, khách hàng chỉ cần sử dụng vốn tự có để thanh toán đủ giá trị 30% của giá trị sản phẩm. Phần còn lại xây dựng nhà ở sẽ được chủ đầu tư hỗ trợ trả góp theo từng tháng với mức lãi suất ưu đãi. Đồng thời để giảm thiểu tối đa số tiền trả góp mỗi tháng, khách hàng có thể lựa chọn gói vay 20 năm từ ngân hàng liên kết với chủ đầu tư,…. Song song đó khách hàng cũng yên tâm về pháp lý vì được ngân hàng hỗ trợ.
GIÁ BÁN
Giá bán hấp dẫn của The Rivus Elie Saab Thủ Đức
Bảng Giá bán KDC The Rivus Elie Saab Thủ Đức mới nhất được cập nhật giá cụ thể như sau: Giá bán đất nền KDC The Rivus Elie Saab Thủ Đức: đang cập nhật
Liên hệ ngay 0944.505.454 để nhận được BẢNG GIÁ, CHÍNH SÁCH ƯU ĐÃI và GIỎ HÀNG mới nhất của dự án.
☎️ Hotline hỗ trợ dự án 24/7 : 0944.505.454
Giỏ hàng, bảng giá và chính sách bán hàng sẽ THAY ĐỔI THEO THÁNG nên để hỗ trợ được thông tin nhanh chóng và kịp thời. Quý khách hàng nên liên hệ hotline 0944.505.454 để có được thông tin chính xác và mới nhất thông qua đội ngũ nhân viên tư vấn chuyên nghiệp của dự án.
NHIỆT TÌNH – CHÍNH XÁC – CHUYÊN NGHIỆP
- Gọi ngay: 0944.505.454
- Inbox Zalo: https://zalo.me/09444505454
- Inbox Viber: viber://chat?number=+84944505454
☎️ Hotline hỗ trợ dự án 24/7 : 0944.505.454
Quý anh/chị cần hỗ trợ thông tin về tiến độ dự án vui lòng liên hệ qua Điện thoại, Viber, Zalo hoặc Wechat qua số điện thoại 0944.505.454
+ Tư vấn chính xác thông tin chi tiết sản phẩm
+ Hướng dẫn và tư vấn đúng nhu cầu thực tế (Đầu tư và An cư) cho khách hàng , chọn căn vị trí đẹp, phù hợp với nhu cầu khách hàng
+ Hỗ trợ Hợp đồng – Pháp lý
+ Hỗ trợ tham quan thực tế
+ Hướng dẫn thủ tục và quy trình hỗ trợ ngân hàng
+ Đồng hành trước và sau khi bán hàng cho khách hàng (Chuyển nhượng)
TIẾN ĐỘ
Tiến độ xây dựng tại The Rivus Elie Saab Thủ Đức
Tiến độ xây dựng khu dân cư The Rivus Elie Saab Thủ Đức chủ đầu tư sẽ được cập nhập thường xuyên liên tục tại danh mục Tiến độ Dự án The Rivus Elie Saab Thủ Đức . Quý anh/chị cần hỗ trợ thông tin về tiến độ dự án The Rivus Elie Saab Thủ Đức vui lòng liên hệ qua Điện thoại, Viber, Zalo hoặc Wechat qua số điện thoại 0944.505.454

KÝ GỬI
Nhận mua bán ký gửi The Rivus Elie Saab Thủ Đức
Sàn giao dịch bất động sản Vincom-shophouse có nhận mua bán, ký gửi, cho thuê căn hộ, Officetel, căn hộ Thương Mại Dịch Vụ, Shophouse dự án đất nền châu đốc. Quý Khách hàng cần hỗ trợ thông tin về mua bán, ký gửi, cho thuê The Rivus Elie Saab Thủ Đức vui lòng liên hệ qua Điện thoại, iMessage, Viber, Zalo hoặc Wechat qua số điện thoại 0944 505 454
Quý anh/chị cần hỗ trợ mua bán lại, ký gửi đất nền dự án cần thơ vui lòng nhắn thông tin mã mã nền The Rivus Elie Saab Thủ Đức muốn bán lại ví dụ ( Mã căn, Giá hợp đồng , giá bán lại, ngày ký hợp đồng…) Hoặc nhắn tin hoặc gọi điện qua hotline 0944 505 454 để hướng dẫn nhé.
Quý anh/chị có căn hộ muốn bán hoặc cho thuê vui lòng nhắn tin qua Zalo/Viber qua số điện thoại 0944 505 454 với nội dung như sau:
- Bán/ký gửi The Rivus Elie Saab Thủ Đức Mã nền: ….
- Diện tích: …….m2
- Giá bán gồm VAT trên hợp đồng: ….. vnđ
- Lợi nhuận muốn thu về ( sau khi trừ các chi phí: phí môi giới, công chứng, thuế….): …. vnđ
- Tiến độ thanh toán trên hợp đồng: ……………. ( Anh/chị vui lòng chụp tiến độ thanh toán trên hợp đồng của mình để chúng tôi biết tiến độ thanh toán còn lại trên hợp đồng)
- Họ tên & SĐT liên hệ: …….
Hoặc đăng ký gửi bán/cho thuê tại đây
CHUYÊN NHẬN MUA BÁN KÝ GỬI – CHO THUÊ – THIẾT KẾ THI CÔNG XÂY DỰNG DỰ ÁN KHU DÂN CƯ THE RIVUS ELIE SAAB THỦ ĐỨC
☎ Hotline 24/7: 0944 505 454
(Phone, Viber, Zalo, Whatsapp, Wechat)
MỘT SỐ CÂU HỎI THƯỜNG GẶP DỰ ÁN KHU DÂN CƯ The Rivus Elie Saab Thủ Đức
❂ Dự án nhà phố khu dân cư The Rivus Elie Saab Thủ Đức khi nào được làm chủ đầu tư bàn giao nhà sớm nhất?
Trả lời: đang được triển khai
❂ Thông tin chi tiết các loại hình khu dân cư The Rivus Elie Saab Thủ Đức đã được xây dựng? Tổng số lượng nhà phố bán ra?
– Quy mô:Hơn 20 tòa tháp căn hộ cao tầng tầng kết hợp khu biệt thự thấp tầng và nhà phố thương mại.
– Tiện ích:Sân golf 18 lỗ chuẩn quốc tế 91 ha, khu vui cơi giải trí, trung tâm thể thao, trung tâm thương mại, Clubhouse,…
– Loại hình sản phẩm:Căn hộ cao cấp 1-4 PN, nhà phố, nhà phố thương mại (Shophouse), penthouse, biệt thự, văn phòng.
– Giá bán dự kiến:Từ 100 triệu/m2
– Pháp lý:Sở hữu lâu dài
❂ Giá bán, giá cho thuê The Rivus Elie Saab Thủ Đức được bán và cho thuê như thế nào? Dự án có hỗ trợ vay ngân hàng không?
– Giá bán bán hấp dẫn tùy vị trí và diện tích
❂ Chủ đầu tư & Đơn vị bán hàng chính khu dân cư The Rivus Elie Saab Thủ Đức là ai ?
– Địa chỉ: tọa lạc Đường Đỗ Xuân Hợp, Phường An Phú, TP. Thủ Đức, TP.HCM
– Liên hệ: 0944 505 454 xem nhà thực tế
– Chủ dự án The Rivus Elie Saab Thủ Đức là: Tập đoàn Masterise Homes
– Đơn vị bán hàng chính là: Vincom-Shophuse – 0944 505 454 xem thực tế của khách hàng quan tâm dự án vui lòng để lại thông tin bên dưới hoặc liên hệ với chúng tôi qua HOTLINE: 0944 505 454 để được hỗ trợ và tư vấn trực tiếp.
